58 Granya Grove, MOUNT ELIZA
SEASIDE ADDRESS WITH SENSATIONAL SPACE
Enjoy lavish space and luxury inclusions at this extra-ordinary seaside address, just a pleasant walk from Ranelagh Beach, moments from the vibrant village, exclusive schools and the Mornington Peninsula's plethora of lifestyle spoils.
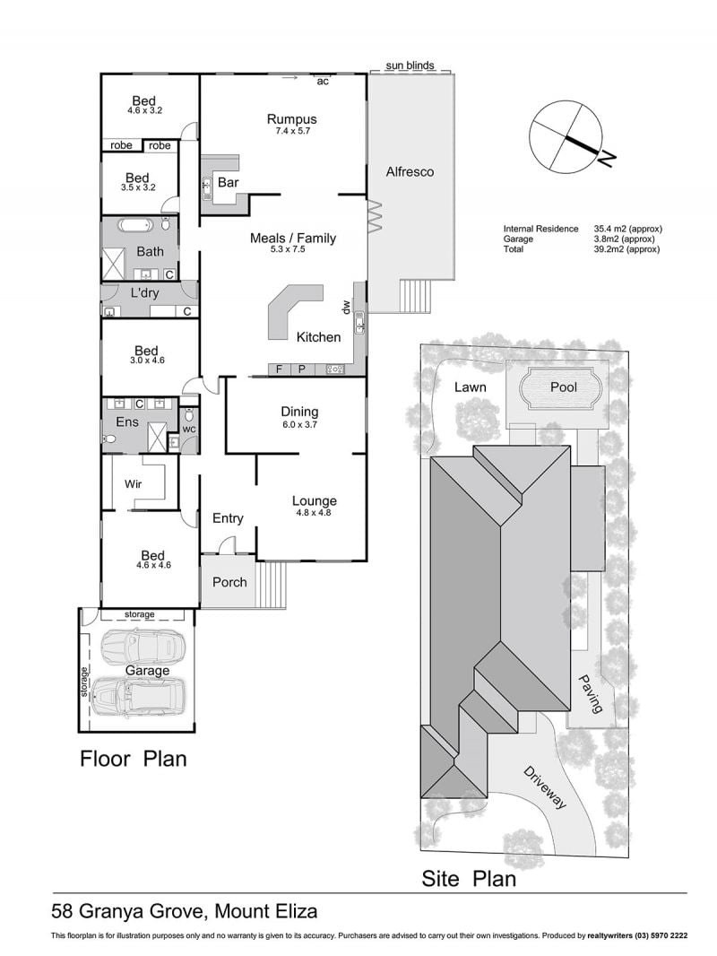
A fabulous chance to upsize in one of Mt Eliza's favourable streets, this 4 bedroom home offers 4 large living and dining spaces and enviable entertaining options including adjoining formal lounge and dining areas with space for a grand piano, a poolside rumpus room with a wetbar and concertina doors providing seamless flow out to a fabulous covered alfresco deck.
Surrounded by scented gardens with tall hedging adding privacy, the home has been upgraded to combine its elegant space with modern class featuring a showpiece stone-topped kitchen with Belling 4-door oven and induction cooktop, a sleek modern ensuite with walk-in shower and twin vanities, and a luxurious main bathroom with walk-in shower and freestanding pod bath.
A floorplan with wonderful practicalities sets the kitchen beside the formal dining room and an open plan family/dining room with easy flow out to the deck for entertaining with pull-down bistro blinds for late night dinner parties, while the rear gardens provide a tranquil setting for enjoying summers by the solar-heated self-cleaning swimming pool.
A quick walk to Kunyung Primary School, the home also features ducted heating, airconditioning, a double remote-controlled garage with generous storage, solar power and a water tank set neatly beneath the deck.
Land size: 980sqm (approx)
A fabulous chance to upsize in one of Mt Eliza's favourable streets, this 4 bedroom home offers 4 large living and dining spaces and enviable entertaining options including adjoining formal lounge and dining areas with space for a grand piano, a poolside rumpus room with a wetbar and concertina doors providing seamless flow out to a fabulous covered alfresco deck.
Surrounded by scented gardens with tall hedging adding privacy, the home has been upgraded to combine its elegant space with modern class featuring a showpiece stone-topped kitchen with Belling 4-door oven and induction cooktop, a sleek modern ensuite with walk-in shower and twin vanities, and a luxurious main bathroom with walk-in shower and freestanding pod bath.
A floorplan with wonderful practicalities sets the kitchen beside the formal dining room and an open plan family/dining room with easy flow out to the deck for entertaining with pull-down bistro blinds for late night dinner parties, while the rear gardens provide a tranquil setting for enjoying summers by the solar-heated self-cleaning swimming pool.
A quick walk to Kunyung Primary School, the home also features ducted heating, airconditioning, a double remote-controlled garage with generous storage, solar power and a water tank set neatly beneath the deck.
Land size: 980sqm (approx)
features
- Alarm System
- Built-ins
- Deck
- Dishwasher
- Ducted Heating
- Entertainment Area
- Swimming/Lap Pool
- Remote Garage
- Air Conditioning
- Heating
- Study
- Polished Timber Floors
- Fully Fenced
overview
-
8453049
-
$ 2,000,000
-
House
-
Sold
-
58 Granya Grove MOUNT ELIZA VIC
-
4
-
2
-
2
-
980 sqm
-
2
